Μετρήσεις και ιδανικές διαστάσεις μιας κουζίνας

Για να σχεδιάσετε σωστά μια κουζίνα, είναι απαραίτητο να γνωρίζετε την ακριβή μέτρηση του δωματίου, καθώς και τα συνολικά μεγέθη, τα ύψη, τα πλάτη και τα βάθη όλων των στοιχείων. Αυτό θα επιτρέψει την αποφυγή προβλημάτων κατά τη συναρμολόγηση και την ολοκλήρωση μιας λειτουργικής κουζίνας.

Μετρήσεις των γωνιών κουζίνας

Πριν από την παραγγελία των επίπλων κουζίνας, πρέπει να λάβετε ακριβείς μετρήσεις των τοίχων για να ελέγξετε για πιθανές μη ορθές γωνίες που δεν υπολογίσατε. Δύο τοίχοι είναι κάθετοι μεταξύ τους εάν η διαγώνια γραμμή, μετρούμενη σε απόσταση ενός μέτρου από τη γωνία, είναι 141,5cm. Αυτή η μέτρηση πρέπει να λαμβάνεται σε διάφορα ύψη. 

Ιδιαίτερη προσοχή χρειάζεται να δοθεί στη μέτρηση για τον πάγκο εργασίας (σε ύψος περίπου 90cm από το πάτωμα) για την οποία συνιστάται η δημιουργία ενός προτύπου από χαρτόνι. Ένα μικρό λάθος σε αυτή τη μέτρηση μπορεί να προκαλέσει πιθανότητα ένα κοστοβόρο σφάλμα.

Αν η γωνία της κουζίνας δεν είναι ορθή, τότε δύο περιπτώσεις είναι δυνατές:
    A. η διαγώνιος γραμμή είναι <141,5 και ως εκ τούτου η γωνία είναι <90°. Σε αυτή την περίπτωση το μήκος της κουζίνας πρέπει να είναι μικρότερο από το μήκος του τοίχου, ειδικά εάν στο τελείωμα της σύνθεσης υπάρχουν τοποθετημένα συρτάρια, πλυντήριο πιάτων ή φούρνος.
    B. η διαγώνιος γραμμή είναι> 141,5 και επομένως η γωνία είναι > 90°. Σε αυτή την περίπτωση το μήκος της κουζίνας μπορεί να αντιστοιχεί στο μήκος του τοίχου. Το κενό στο μπροστινό μέρος θα καλύπτεται με μια καταφραγή. Ο πάγκος θα πρέπει να κατασκευαστεί χρησιμοποιώντας ένα καλούπι.

Μέτρηση μήκους τοιχώματος

Για να υπολογίσετε το σωστό μήκος ενός τοίχου, στον οποίο θα τοποθετήσετε την κουζίνα χωρίς να αντιμετωπίσετε προβλήματα κατά την τοποθέτηση, πρέπει να θυμάστε ότι μια κουζίνα αποτελείται από στοιχεία που είναι πολλαπλάσια των 15cm.

Για να αποφευχθεί η σπατάλη χώρου και η ανάγκη για προσαρμοσμένες κατασκευές, η κουζίνα πρέπει επίσης να σχεδιαστεί ως πολλαπλάσιο των 15cm.

Ένα επιπλέον εκατοστό σε κάθε πλευρά πρέπει πάντα να λαμβάνεται υπόψη εάν πρόκειται να προστεθούν πλακάκια στον τοίχο.

Αν το ψυγείο θα εγκατασταθεί στο τέλος μιας διάταξης, τότε προσθέστε 5cm για να μπορεί να ανοίξει πλήρως η πόρτα με οριζόντια λαβή. Για ψυγεία με κυρτή πόρτα προσθέστε επιπλέον 10*cm, ενώ επιπλέον 20*cm εάν τοποθετήσετε ψυγείο ντουλάπα.

Το βάθος των «ελεύθερων» ψυγείων ποικίλλει ανάλογα με τη χωρητικότητά τους σε λίτρα. Για τα ψυγεία ντουλάπα με εξωτερική παροχή νερού και πάγου, πρέπει να εξετάσετε το χώρο του ψυγείου.

*ενδεικτικές μετρήσεις που πρέπει να ελεγχθούν με την παραγγελία της συσκευής.

Στη γωνία της κουζίνας είναι απαραίτητο να προσθέσετε το μέγεθος της γωνιακής καταφραγής (X) (που χρησιμοποιείται για να διευκολύνει το άνοιγμα της πόρτας) στο βάθος των μονάδων βάσης. Σε γενικές γραμμές είναι προτιμότερο να χρησιμοποιείτε μια πόρτα με κάθετη ή οριζόντια λαβή. 

Για να τοποθετήσετε δύο πόρτες με οριζόντιες λαβές, πρέπει να λάβετε υπόψη σας ότι θα χτυπούν μεταξύ τους, οπότε φροντίστε να υπολογίσετε  το πλάτος της γωνιακής καταφραγής. Γενικά, για τις περισσότερες κουζίνες το πλάτος της γωνιακής καταφραγής (Χ) είναι 5cm. 

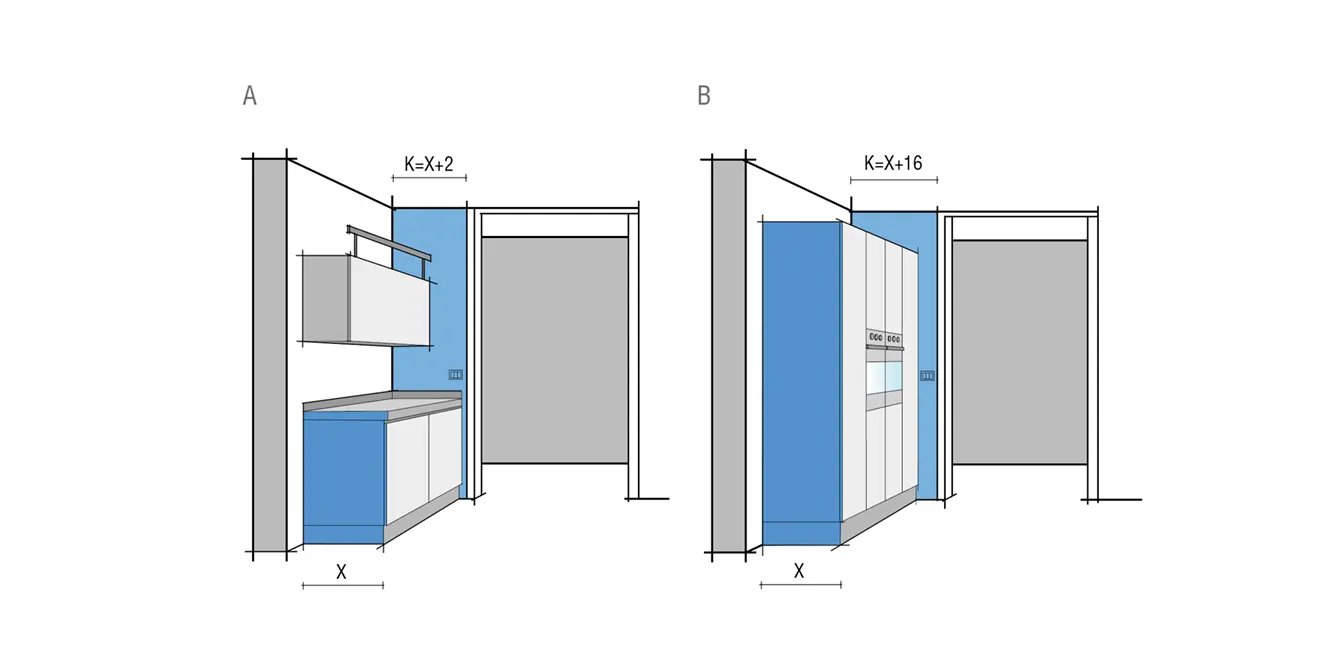
Μέτρηση απόστασης, γωνία τοίχου έως πόρτας

Το πλάτος του τοίχου (K) από τη γωνία έως το πλαίσιο της πόρτας πρέπει να υπολογιστεί λαμβάνοντας υπόψη το βάθος (X) των μονάδων της κουζίνας και των ηλεκτρικών συσκευών που είναι εγκατεστημένα στον τοίχο αυτό.
Γενικά είναι πάντοτε καλό να υπολογίζεται ένα κενό ασφαλείας από το τοίχωμα περίπου 2cm.
    A. Εάν υπάρχουν μονάδες βάσης, το πλάτος του τοίχου υπολογίζεται προσθέτοντας στο βάθος των μονάδων βάσης (Χ) ένα διάκενο 2cm πριν το πλαίσιο της πόρτας. Το συνολικό πλάτος του τοίχου θα είναι: K = X + 2.
    B. Εάν υπάρχουν ψηλές μονάδες, δε θα αρκεί να προσθέσετε κενό ασφαλείας 2cm, αλλά πρέπει επίσης να λάβετε υπόψη το χώρο που χρειάζεται για να τοποθετηθεί ένας διακόπτης (περίπου 12cm). Σε αυτή την περίπτωση, το πλάτος του πλευρικού τοίχου θα υπολογιστεί προσθέτοντας στο βάθος των ψηλών μονάδων (Χ =) ένα κενό 2cm μεταξύ της ψηλής μονάδας και του διακόπτη, 12cm για το διακόπτη και ένα επιπλέον κενό 2cm μεταξύ του διακόπτη και του πλαισίου της πόρτας. Το συνολικό πλάτος του τοίχου θα είναι: K = X +16cm.

Προβλήματα συνθέσεων κοντά σε πόρτα

ΣΥΡΤΑΡΙΑ:
Τα πλαίσια πόρτας συνήθως προεξέχουν από τον τοίχο κατά περίπου 1cm. Όταν λοιπόν σχεδιάζετε μια κουζίνα που τελειώνει σε τοίχο στον οποίο υπάρχει πόρτα, πρέπει να ακολουθήσετε μερικούς απλούς κανόνες. Ένας καλός κανόνας είναι να αφήσετε απόσταση ανάμεσα στις μονάδες βάσης και τον πλευρικό τοίχο κατά 5cm για να μπορεί ένα μεγάλο συρτάρι να ανοίγει χωρίς να χτυπάει το πλαίσιο της πόρτας. Μια λωρίδα καταφραγής θα κρύψει το κενό, ενώ ο πάγκος θα συνεχίσει μέχρι να ενωθεί με τον τοίχο.

ΟΡΙΖΟΝΤΙΕΣ ΧΕΙΡΟΛΑΒΕΣ:
Εάν η κουζίνα έχει πόρτες με οριζόντιες λαβές, πρέπει να μείνει ένα κενό μεταξύ του τελευταίου ντουλαπιού και του τοίχου. Το πλάτος του κενού εξαρτάται από το χώρο που χρειάζεται η λαβή όταν η πόρτα είναι ανοιχτή για να μην ακουμπάει στον τοίχο. Ένα κενό 5cm είναι συνήθως αρκετό, αλλά είναι πάντα καλό να κοιτάτε το βάθος των χειρολαβών που θέλετε να χρησιμοποιήσετε.

ΠΛΥΝΤΗΡΙΟ ΠΙΑΤΩΝ: 
Ένα πλυντήριο πιάτων στο τέλος μιας διάταξης και κοντά σε μια πόρτα απαιτεί ένα κενό περίπου 5cm από τον τοίχο για να επιτρέψει στην πόρτα να ανοίγει χωρίς να χτυπήσει το πλαίσιο της πόρτας. 

Η Gruppo Cucine αποφεύγει την τοποθέτηση του πλυντηρίου πιάτων στο τέλος μιας διάταξης, εάν η γωνία δεν είναι ορθή, γιατί μπορεί να προκύψουν προβλήματα τόσο κατά τη τοποθέτηση όσο και κατά το άνοιγμα της πόρτας μετά. 

Επίσης, λόγω του ότι το πλυντήριο πιάτων δεν τοποθετείται μέσα σε μονάδα βάσης, αλλά στα πλευρικά πλαίσια των μονάδων σε κάθε πλευρά, εάν τοποθετηθεί στο τέλος της διάταξης, η στήριξη του πάγκου θα είναι ελλιπής. 

ΠΟΡΤΑ ΜΕ ΑΝΥΨΩΣΗ: 
Αν μια ειδική μονάδα τοίχου έχει πόρτα ανύψωσης στο τέλος μιας σύνθεσης, λόγω του ειδικού μεγέθους της πόρτας, είναι απαραίτητη η τοποθέτησή της σε απόσταση τουλάχιστον 5cm από τον τοίχο για να ανοίγει χωρίς να χτυπάει το πλαίσιο της πόρτας. Ωστόσο, για να αξιοποιήσετε στο έπακρο την ιδιαίτερη αισθητική αυτών των στοιχείων, είναι προτιμότερο να τα τοποθετήσετε σε άλλες θέσεις, μακριά από άλλα ντουλάπια και τοίχους.

Ο χώρος του νεροχύτη

Αν σκοπεύετε να σχεδιάσετε μια κουζίνα με παράθυρο, τότε η τοποθέτηση του νεροχύτη κάτω από αυτό προσφέρει στο χρήστη τη δυνατότητα να κοιτάξει έξω, μετατρέποντας το πλύσιμο σε μια χαλαρωτική διαδικασία. Το δίλημμα όμως για το πού θα τοποθετηθεί το πλυντήριο πιάτων σε αυτή την περίπτωση αποτρέπει πολλούς από το να το τοποθετήσουν στη θέση αυτή. 

Η Gruppo Cucine προτείνει δύο λύσεις για την τοποθέτηση αυτή: 

  • Μια θέση στράγγισης πιάτων στο πίσω μέρος του πάγκου. 
  • Mια θέση στράγγισης πιάτων σε ένα συρόμενο κανάλι μέσα σε μια μονάδα βάσης κοντά στο νεροχύτη.

Εάν ο νεροχύτης είναι τοποθετημένος κάτω από παράθυρο, θα πρέπει να βεβαιωθείτε ότι το άνοιγμα του παραθύρου δεν εμποδίζεται από τη βρύση. Αυτό μπορεί να διασφαλιστεί με τρεις τρόπους:

    A. Με την τοποθέτηση οριζόντιων ή κάθετων συρόμενων παραθύρων.
    B. Με την τοποθέτηση της βρύσης στο κέντρο του παραθύρου.
    C. Εγκαθιστώντας μια πτυσσόμενη βρύση, εάν το B δεν είναι δυνατό. Σε αυτή την περίπτωση, πρέπει να υπολογίζεται το ύψος του περβαζιού του παραθύρου στα 13cm, που αντιστοιχεί στο ύψος της διπλωμένης βρύσης.

Σύνδεση υδραυλικής εγκατάστασης

Σε μια διάταξη, όπου η κουζίνα βρίσκεται κολλημένη στον τοίχο, ο χώρος στον οποίο θα βγαίνουν οι σωλήνες πρέπει να συμπίπτει με τον κενό χώρο στο πίσω μέρος της μονάδας βάσης που τοποθετείται ο νεροχύτης.

Ο χώρος αυτός περιλαμβάνεται μεταξύ του Υ2 (άνω όριο) και του Y1 (κάτω όριο), όπου:

  • Το Y1 ισούται με το ύψος από το πάτωμα της μονάδας βάσης K (είτε με μπάζα, είτε με πόδια ή κρεμασμένο σε τοίχο) που αυξάνεται κατά 10 εκατοστά, έως το χαμηλό κάτω πλαίσιο πλάτης + περίπου 6 εκατοστά για λόγους ασφαλείας.
  • Το Y2 ισούται με Y1 + 24cm εάν η μονάδα βάσης έχει βάθος 60cm, Y1 + 36cm αν η βάση είναι βάθους 72cm.

Από μια εμπρόσθια όψη, οι αποχετεύσεις πρέπει να είναι κεντραρισμένες στο νεροχύτη και να διατηρούνται σε απόσταση περίπου 7cm από τις δύο πλευρές της μονάδας.

Τρία παραδείγματα υπολογισμών για τις εξόδους σωλήνων

Τρία παραδείγματα υπολογισμών για τις εξόδους σωλήνων

  1. Κουζίνα με βάθρο H13cm και βάση H72:
    Υ1 = 13cm + 16cm = 29cm
    Υ2 = 29cm + 36cm = 65cm.

  2. Κουζίνα με πόδια H25cm και βάση H60:
    Υ1 = 25cm + 16 = 41cm
    Υ2 = 41cm + 24cm = 65cm.

  3. Κουζίνα τοίχου H34cm από το δάπεδο και βάση H60:
    Υ1 = 34cm + 16cm = 50cm
    Υ2 = 50cm + 24cm = 74cm.

Λόγω του μειωμένου χώρου για τις εξόδους των σωλήνων δε συνιστούμε να τοποθετήσετε νεροχύτη σε κρεμαστή μονάδα βάσης H36.

Ηλεκτρικές πρίζες

Η κουζίνα είναι ο χώρος με τις περισσότερες ηλεκτρικές συσκευές σε ένα σπίτι. Ορισμένες από τις συσκευές αυτές είναι μόνιμα συνδεδεμένες, ενώ άλλες συνδέονται κατά τη χρήση τους. Το ψυγείο, το πλυντήριο πιάτων και οι φούρνοι συνδέονται με τις παροχές που τοποθετούνται σε ύψος 17,5cm από το πάτωμα, στο πίσω μέρος των μονάδων βάσης στις οποίες βρίσκεται η συσκευή.

Πρόβλημα μπορεί να προκύψει όταν είναι απαραίτητο να αποσυνδέσετε μια τέτοια συσκευή για συντήρηση ή επισκευή. Σε περιπτώσεις όπως αυτές, θα πρέπει να αποσυναρμολογηθούν οι μονάδες της κουζίνας.

Η ιδανική λύση είναι μια ηλεκτρική εγκατάσταση με ξεχωριστές υποδοχές και διακόπτες στη μονάδα βάσης που βρίσκεται ο νεροχύτης, η οποία είναι η μόνη που δεν έχει πλάτη, αλλά έχει πρόσβαση στον τοίχο. Έτσι, σε περίπτωση βλάβης, σας επιτρέπει να διακόψετε την παροχή ρεύματος στη συσκευή, χωρίς να διακοπεί και στην υπόλοιπη κουζίνα.

Εάν δεν μπορείτε να συγκεντρώσετε όλες τις παροχές κάτω από το νεροχύτη, θα πρέπει να τοποθετηθούν πίσω από την κάθε συσκευή, έτσι ώστε να μπορούν να αποσυνδεθούν, χωρίς να αποσυναρμολογηθούν τα ντουλάπια.

Οι πρίζες για τη σύνδεση μικρών συσκευών στην κουζίνα θα πρέπει να τοποθετούνται:

    A. Στην πίσω πλευρά της κουζίνας, με απόσταση ασφαλείας 60cm από το νεροχύτη και τις εστίες, για να μην είναι εκτεθειμένες σε θερμότητα ή νερό.
    B. Κάτω από τη βάση του επίτοιχου ντουλαπιού κοντά στο φωτιστικό κανάλι led.
    C. Σε ειδικό κανάλι στο πίσω μέρος της μονάδας βάσης, που να διαθέτει και διακοπή ασφαλείας.

Διαστάσεις των επίπλων κουζίνας

Είναι απαραίτητο να γνωρίζετε τα μεγέθη όλων των στοιχείων που μπορούν να συνθέσουν μια κουζίνας

Η περιοχή αυτή είναι καταχωρημένη στο wpml.org ως περιοχή ανάπτυξης. Μεταβείτε σε τοποθεσία παραγωγής με κλειδί στο remove this banner.